Talmastraat 22 3601 XA Maarssen

Omschrijving

Ruimte, privacy & instapklaar!
Heerlijk vrij wonen in een stijlvol verbouwde tussenwoning met uitzicht over een waterpartij in het centrum van Maarssen? Je vindt het aan de Talmastraat!
Deze mooie instapklare woning telt wel 4 slaapkamers, heeft een walk-in closet, strakke nieuwe keuken, een aparte wasruimte en een grote vrijstaande stenen berging met zolder in de achtertuin.
Met veel gevoel is dit pand een licht huis geworden met veel raampartijen en een mooie afwerking.

Ligging:
De woning is gelegen in de Staatsliedenbuurt; een kindvriendelijke buurt met relatief veel jonge gezinnen en op korte loopafstand van winkels, scholen en natuur. De Talmastraat zelf is een rustige straat waar alleen bestemmingsverkeer komt.

Bereikbaarheid:
De Randstad is altijd dichtbij en goed bereikbaar: Maarssen ligt op ca. 25 autominuten van Amsterdam en 10 minuten van Utrecht. Het NS-station in Maarssen heeft verbindingen met Amsterdam en Utrecht. Bushaltes zijn op enkele minuten loopafstand.

Indeling:
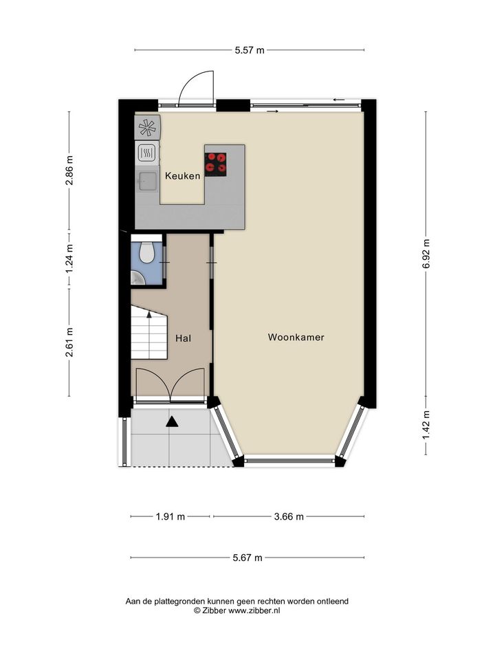
Begane grond:
Via de entree, hal kom je in de doorzon woonkamer. Hier vallen de grote glazen erkerramen aan de voorzijde meteen op.
Op de vloer is een fraaie natuurstenen vloer gelegd voorzien van vloerverwarming. Via de woonkamer met schuifpui wandel je direct de diepe en zonnige achtertuin in. De achterzijde is voorzien van een zonnescherm.
Keuken:
Er is een geheel nieuwe luxe keuken geplaatst aan de achterzijde van het huis met nieuwe inbouwapparatuur en een stijlvolle uitstraling. Door de keuken met loopdeur is er ook toegang tot de achtertuin.

Tuin:
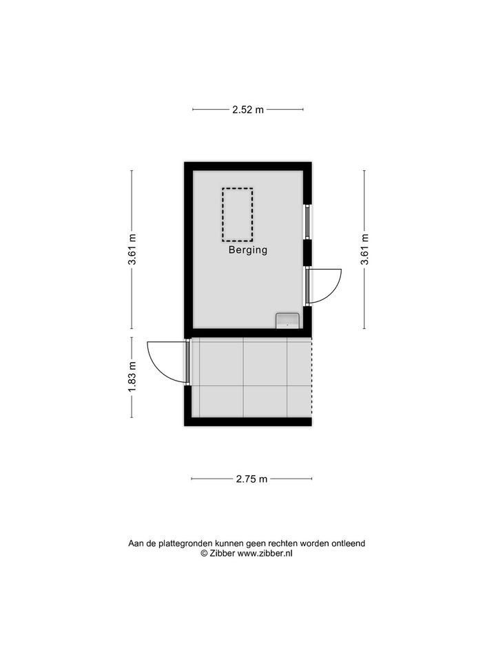
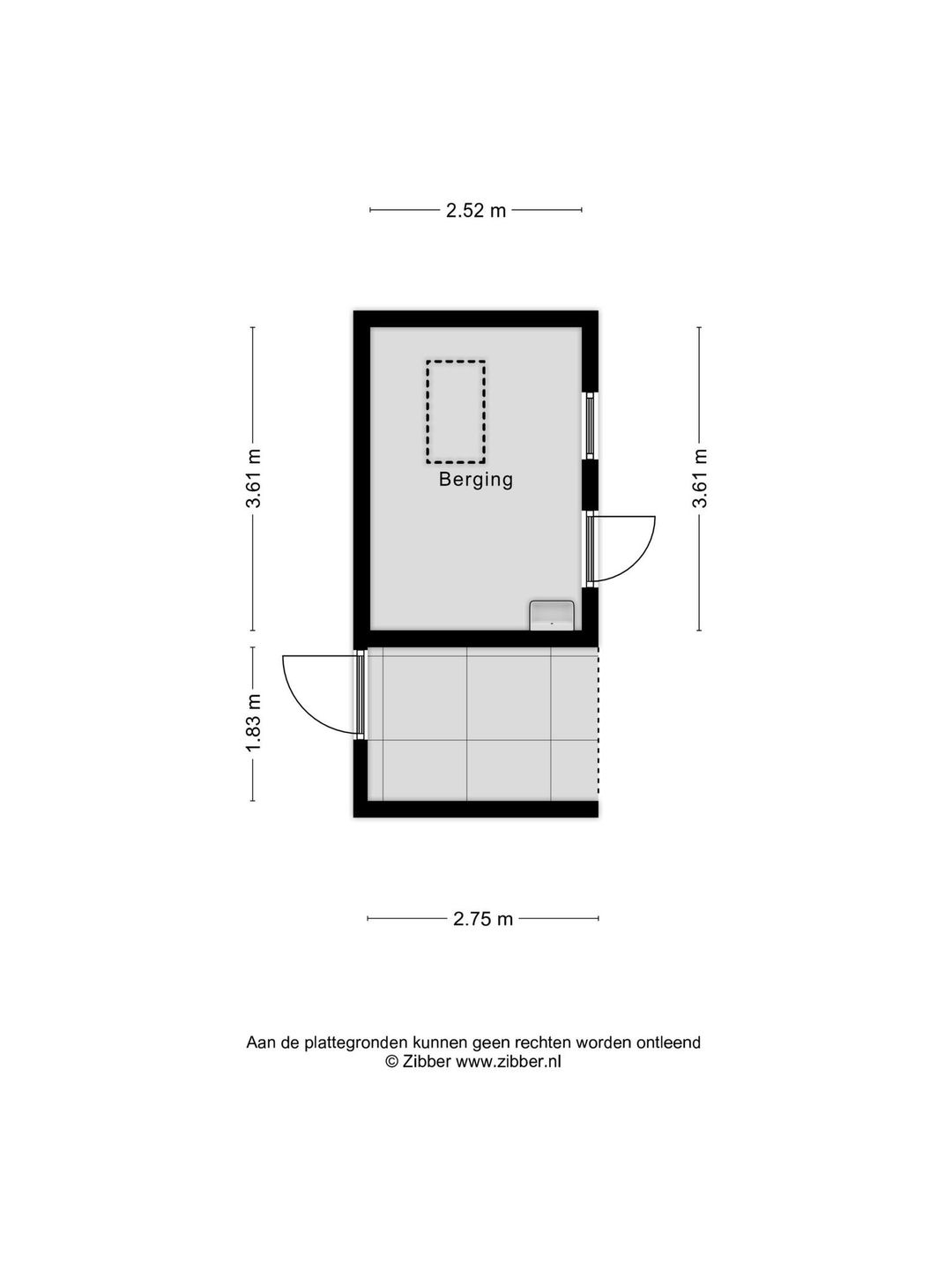
De voortuin is voorzien van sierbestrating met leiplatanen en een sierhekwerk langs de voorzijde. De royale achtertuin is voorzien van houten schuttingen en biedt naast een fraaie afwerking ook veel zon en privacy. Achter in de tuin is nog een grote vrijstaande stenen berging met zolder. En de achtertuin is bereikbaar via een achterom. Ideaal voor bijvoorbeeld de fietsen.

1e verdieping:
Via de vaste trapopgang kom je op de overloop met toegang naar de 2 ruime slaapkamers. De master bedroom aan de voorzijde heeft zijn eigen walk-in closet. De slaapkamer aan de achterzijde heeft een vaste kast. Alle ramen boven zijn voorzien van screens en er hangen 2 airco’s op deze verdieping.
De badkamer is modern met wand- en vloertegels, wastafel met meubel en een fijne regendouche. Het toilet is apart geplaatst en bereikbaar via de overloop.

2e verdieping:
Via de vaste trap kom je op de overloop. Hier vind je de wasruimte welke ook meteen toegang geeft tot de slaapkamer aan de achterzijde van de woning.
De slaapkamer aan de voorzijde is via de overloop te bereiken, heeft vaste kasten met dakkapel, screens aan de buitenzijde en is ook voorzien van een airco.

– Vraagprijs: € 475.000,- k.k.
– Totale woonoppervlak (excl. berging): circa 103 m²
– Oplevering: in overleg
– Voorzien van airco
– Er zijn 2 dakkapellen

Lees de volledige omschrijving

Contact

Derk Makelaardij

Kenmerken

Algemeen

Aangeboden sinds
6+ maanden
Status
Verkocht
Aanvaarding
In overleg
Soort woonhuis
Eengezinswoning, tussenwoning
Soort bouw
Bestaande bouw
Bouwjaar
1962
Soort dak
Pannen
Ligging
Aan rustige weg, aan water, in woonwijk, vrij uitzicht

Oppervlakten en inhoud

Wonen
103 m²
Gebouwgebonden Buitenruimte
3 m²
Externe bergruimte
11 m²
Perceel
145 m²
Inhoud
352 m³

Indeling

Aantal kamers
6 kamers (4 slaapkamers)
Aantal badkamers
1 badkamer
Badkamervoorzieningen
Douche, wastafel, wastafelmeubel
Aantal woonlagen
3
Voorzieningen
Buitenzonwering, mechanische ventilatie, tv kabel

Energie

Energielabel
D
Isolatie
Dubbel glas
Verwarming
Cv ketel
Warm water
Cv ketel
Cv-ketel
Nefit HR (gas gestookt combiketel uit 2013, eigendom)

Kadastrale gegevens

Perceelnaam
Maarsseveen A 3716
Eigendomssituatie
Volle eigendom
Perceel
MSV00-A-3716

Buitenruimte

Tuin
Achtertuin, voortuin
Achtertuin
63 m²
Ligging tuin
Noordwest bereikbaar via achterom

Parkeergelegenheid

Soort parkeergelegenheid
Openbaar parkeren
Bekijk alle kenmerken

Overige media